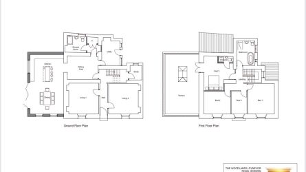
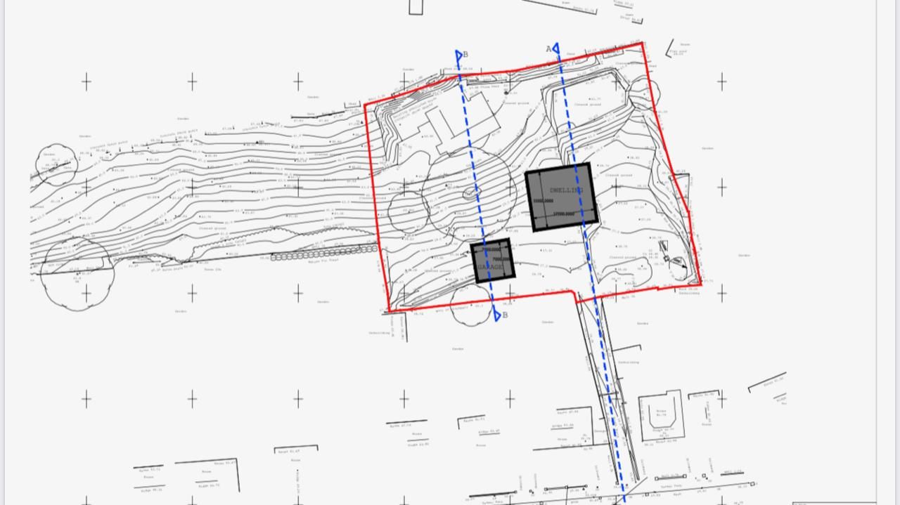
This generous freehold site is situated in an extremely popular location in the village of Skewen, with easy access to the M4 Corridor, excellent Schools/Colleges, Neath town center, and the Gnoll Country Park. The site measures approximately 4400 Sq2 meters which is just over one acre. There are two options to develop the land: one option which has passed with planning is for demolition of the existing dwelling, and construction of a detached dwelling and garage ( outline) the second option is to fully refurbish and extend the existing dwelling with a detached garage which there are architect drawings available to view, this measures approximately 310 Sq2 meters including the garage. Both options would be outstanding to develop, as the views from the top of the land are open and vast. Viewing on-site comes recommended.
Planning reference: P2020/0555 22nd June 2020
Auction fees: The sale of each lot is subject to a buyer’s premium of 1.2% of the purchase price (subject to a minimum of £500) including VAT unless otherwise stated.
In addition to the sale price
Please be advised that to successfully register for the auction, you will be required to supply card details in order for a holding fee of £5000.00 to be placed on your card. Only the successful bidder will be charged. The release of the holding fee for unsuccessful bidders may take in excess of seven days.
* Generally speaking Guide Prices are provided as an indication of each seller's minimum expectation, i.e. 'The Reserve'. They are not necessarily figures which a property will sell for and may change at any time prior to the auction. Virtually every property will be offered subject to a Reserve (a figure below which the Auctioneer cannot sell the property during the auction) which we expect will be set within the Guide Range or no more than 10% above a single figure guide.
* Generally speaking Guide Prices are provided as an indication of each seller's minimum expectation, i.e. 'The Reserve'. They are not necessarily figures which a property will sell for and may change at any time prior to the auction. Virtually every property will be offered subject to a Reserve (a figure below which the Auctioneer cannot sell the property during the auction) which we expect will be set within the Guide Range or no more than 10% above a single figure Guide.
Submit an enquiry and someone will be in contact shortly.
By setting a proxy bid, the system will automatically bid on your behalf to maintain your position as the highest bidder, up to your proxy bid amount. If you are outbid, you will be notified via email so you can opt to increase your bid if you so choose.
If two of more users place identical bids, the bid that was placed first takes precedence, and this includes proxy bids.
Another bidder placed an automatic proxy bid greater or equal to the bid you have just placed. You will need to bid again to stand a chance of winning.